35kV变电所主接线设计指南:桥形接线与单母线接线的选择要点
<股票配资公司>35kV变电所主接线设计指南:桥形接线与单母线接线的选择要点股票配资公司>

主接线的一般要求
(1) 35kV变电所主接线设计应根据负荷容量大小、负荷性质、电源条件、变压器容量及台数、设备特点以及进出线回路数等综合分析来确定。主接线应力求简单、运行可靠、操作方便、设备少并便于维修,节约投资和便于扩建等要求。
(2) 35kV采用室外配电装置,并有两回路电源线和两台变压器时,主接线可采用“桥形接线”。当电源线路较长时高压并联电容器装置 最新标准,应采用内桥接线, 为了提高可靠性和灵活性,可增设带隔离开关的跨条。当电源线路较短,需经常切除变压器,或桥上有穿越功率时,应采用外桥接线。当35kV出线数为两回路以上或采用室内配电装置时,宜采用单母线或分段单母线接线。10(6)kV侧宜用分段单母线、单母线接线。

(3)10(6)kV配电所主接线宜采用单母线或分段单母线; 当供电连续性要求较高,不允许停电检修断路器或母线时,可采用双母线接线。
(4)10(6)kV配电所专用电源线的进线开关宜采用断路器或带熔断器的负荷开关。当无继电保护和自动装置要求,且出线回路少无需带负荷操作时,可采用隔离开关或隔离触头。
(5) 在高压断路器的电源侧及可能反馈电能的一侧,必须装设高压隔离开关或隔离触头。
(6) 向高压并联电容器组或频繁操作的高压用电设备供电的出线断路器兼做操作开关时,应采用具有高分断能力和频繁操作性能的断路器。
(7) 10 (6) kV母线的分段处,宜装设断路器,但符合下列情况时,可装设隔离开关或隔离触头组:
1)事故时手动切换电源能满足要求。
2)不需要带负荷操作。
3)继电保护或自动装置无要求。
4)出线回路较少。

(8)10(6)kV两配电所之间的联络线宜在供电可能性大的一侧配电所装设断路器35kV变电所主接线设计指南:桥形接线与单母线接线的选择要点,另一侧装隔离开关或负荷开关,如两侧供电可能性相同,宜在两侧均装设断路器。
(9)变电所、配电所每段高压母线上及架空线路末端必须装设避雷器。接在母线上的避雷器和电压互感器,宜合用-~组隔离开关。架空进出线上的避雷器回路中,可不装设隔离开关。
(10) 每段高压母线上应装设一组电压互感器。电压互感器应采用专用熔断器保护。
(11)由地区电网供电的变配电所电源进线处,宜装设供计费用的专用电压及电流互感器或专用电能计量柜。
(12)所用变压器宜采用高压熔断器保护。
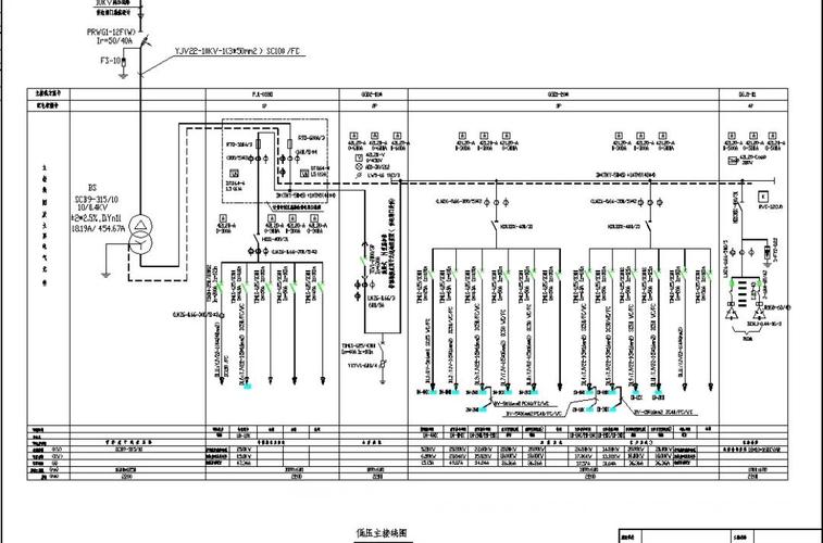
常用35kV变电所主接线可参照表2- 17选用,接线示例见图2- 1。





图2-1中35、10kV配电设备均采用室内配电装置,均按分段单母线设计,双电源同时工作;母线分段断路器正常处于断开位置,当其中一路电源检修或电压消失时,该断路器投人运行。设计有两台备用出线柜,目的为存放备用手车。电压瓦感器均为单相三绕组浇注式产品,开关厂应在开关柜中装设消谐器。








